NA ANTENIE: BAL U RAFALA/RALPH KAMINSKI
Studio nagrań Ogłoszenia BIP Cennik
SŁUCHAJ RADIA ON-LINE
 

Nowe domy w Lusówku? Mieszkańcy są na nie

Publikacja: 25.11.2025 g.17:10  Aktualizacja: 25.11.2025 g.19:44 Szymon Majchrzak
Poznań
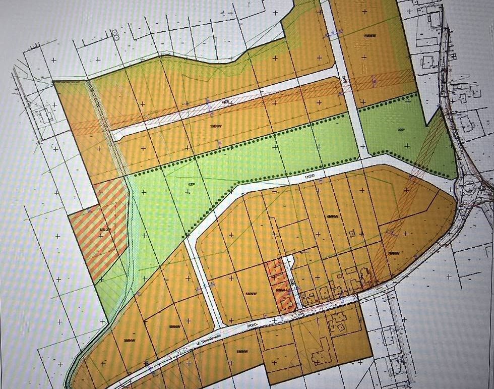
Władze podpoznańskiej gminy chcą pozwolić na budowę nowych domków. Część mieszkańców mówi „nie”. Sprawa dotyczy miejscowości Lusówko w Tarnowie Podgórnym, gdzie wójt zaproponował, żeby dopuścić powstanie 34 nowych domów i park.
lusówko plan zagospodarowania - FB Sołtys Lusówko - Adam Retkowski
Fot. (FB Sołtys Lusówko - Adam Retkowski)

Spis treści:

    Obecnie w tym miejscu są pola, a część terenu jest przeznaczony pod zalesienie.

    Pod petycją w tej sprawie podpisało się tysiąc osób. Kolejnych 470 poparło sprzeciw wyrażony w konsultacjach. Radni z opozycji przekonują, że władze gminy ich ignorują. Wójt Tadeusz Czajka odpowiada, że sprawa jest wyolbrzymiona.

    Na 34 działkach średnio nam wychodzi, że trzy osoby będą w jednym mieszkaniu, to wychodzi 100 nowych osób. 100 dodatkowych mieszkańców w miejscowości, która liczy 4000. Zachwieje to równowagę?

    - pyta wójt.

    Lider opozycyjnego ugrupowania w radzie gminy Tomasz Kluwak zaproponował, żeby ograniczyć zabudowę i zaplanować w tym miejscu dom kultury. Część sprzeciwiających się zabudowie podkreśla również, że wprowadzenie się kolejnych mieszkańców zwiększy ruch na wąskich drogach wyjazdowych.

    Zebranie wiejskie wypowiedziało się przeciwko projektowi przekształceń i poprosiło pana wójta o to, żeby zechciał z nami usiąść do stołu i rozmawiać właśnie o przyszłości tego terenu. Nie spotkałem więcej niż kilka osób, które by powiedziały i to są właściciele, no rozumiem ich, którym ten pomysł się podoba

    - przyznaje lider opozycji.

    Decyzja w sprawie nowego Miejscowego Planu Zagospodarowania Przestrzennego zapadnie na dzisiejszej sesji rady gminy. Większość w tym zgromadzeniu mają zwolennicy wójta.

    https://radiopoznan.fm/n/61Rnpm